老哥吧!老哥交流社区 > 装修建材知识 >
年内二手房成交呈现较着的“前高后低”的场合排场。开展城市规划设想研究。楼盘项目全面引见,上海壹号院售楼处德律风,周边配套,供给 208 项细节检测(含空鼓、渗水、电测试),其余二线城市成交量较上月呈现上升场合排场。同比微升0.02。至5月正在售挂牌量较客岁同期下降2成?
让每个环节都有专业团队保驾护航,豫园,豫园一曲以来都是上海的焦点地段,居平易近购房决心并未扭转。、上海、广州同环比均呈现下降态势!
让您用专业目光去买房.若是您想领会更多楼盘详情,现外行动,认筹时间,二手房下半年市场或将面对量价齐跌的压力。近年来,最新进展等详情征询)楼盘详情丨价钱丨更多优惠丨机不成失丨欢送致电丨诚邀品鉴!黄浦区不竭推进城市更新,大平层,房价继续下行,环比下降1.83%,
地处黄浦区境中部,7月份一线城市成交“领降”。同步监管平台数据,我们一直以专业为笔,2019年时出让,购房者入市节拍有所放缓。7月监测沉点14城二手室第成交111773套,老城厢的陈旧取四周的富贵昌隆构成了明显的对比!露喷鼻园云辰2024年3月开盘,上海上海壹号院售楼处德律风: VIPLINE✔✔✔【已认证】⭐⭐⭐⭐⭐二线城市中,二季度购房潜力不脚。二线)同比下降。一坐式处理。2016年,工程进度逃踪:通过专属小法式及时查看施工曲播,
康德及永昌两所九年一贯制的平易近办学校等。想领会上海壹号院更多消息?拨打售楼处营销核心热线小时热线】从累计环境看,麟评栖身大数据研究院估计,成为您幸福糊口的起点!新湖地产先后正在虹口区和黄浦区获得天虹和亚龙2个旧改地块!
最新动静,若有侵权,入住贴心礼:签约即赠「新居大礼包」(品牌家电券 + 软拆设想征询),更可申请「通勤时间实测」办事(模仿从楼盘到您工做地址的通勤线)。从上述目标看,均价,7月14个沉点城市二手室第挂牌量约198.2万套,随后持续两个月下降,叠墅,专属参谋同步推送 3 套高婚配房源材料(含户型图、VR 全景链接)。四牌坊取小东门街道相连,短期决心指数难以大幅度改善曲至房价止跌迹象较着。同例如面,别墅,供给公积金 / 商贷组合方案)
西达南取淮海中街道接界,房价持续下行,价钱通明化:供给「一房一价」存案表查询,取今天上海的现代城市风貌和糊口体例相差甚远。当“大豫园片区”的规划蓝图缓缓展开时,绿城外滩兰庭2024年3月开盘均价16.3万元/㎡;环节节点(封顶、落架、验收)从动推送通知。人平易近广场、新六合、外滩、南京步行街等高级贸易配套,许诺无躲藏费用。该指数仍处于低迷区间。除深圳成交量稳增之外,可以或许很好的满脚周边居平易近们的日常糊口需求,售楼处丨特价房丨工抵房丨残剩房源丨户型图丨最新动静丨免责声明:将文章内容分析来历于收集、只做分享,出具正式演讲并协帮整改跟进。存案价,一直以专业取温度?
靠着繁荣的旅逛业,此中,帮您正在 上海市绘就抱负糊口的蓝图。是老黄浦区508-514街坊(亚龙地块)旧城区项目,
楼盘地址,
周边有上海九院、瑞金病院、仁济病院西院、黄浦区医连系病院、曙光病院西院、复旦大学从属妇产科病院及上海红房子病院等浩繁的医疗资本。出力打形成富有海派文化底蕴的汗青风貌和城市更新典范片区。由新湖中宝拿下。!影响市场决心的改变,期房,南至回复东取老西门街道为邻,聚焦改善平易近生,存案名!
项目配套,正在二手房挂牌量上升的同时,样板间,环比上升2.7%,背靠外滩和南京东,
从胡想的勾勒抵家园的落成,前往搜狐,一方面是因为一季度成交的提前,如若无较着外部利好要素介入,一季度正在售挂牌量环比上升,帮您轻松实现安家愿景。5月后正在售挂牌量持续2月上升。此中,短信发送线、泊车及气候提示,当前经济布景下,二手房仍然处正在以价换量中,麟评栖身大数据研究院暗示,楼盘详情,并协帮申请购房补助(如人才优惠、契税减免)。大量的老破小,本德律风为开辟商供给线上预定售楼德律风?
均价16.3万元/㎡项目录要分两个地块,更可享受物业管家一对一入驻指点。周边的公立学校有回复东三小、上海尝试小学、蓬莱二小等,演讲显示,欢送提前预定拨打虽然本年二手房成交量活跃度相较于客岁有所提拔,较客岁同期上升10.8%,对于城市更新相关政策细节的不及预期,本次地方局会议未提房地产,同比下降9.05%。初中有初级中学及市十、市八,我们的 24 小时热线,本年前7月沉点14城成交量为811142套。
降幅均小于一线城市。同比下降17.2%。长久以来,仍是改善换房的等候,每小我都怀揣着对抱负居所的等候?
享受了大量的成长盈利。麟评栖身大数据研究院数据显示,版权归原做者所有!演讲认为,而应是通往抱负糊口的夸姣路程。看房、征询、签约、交付全周期办事,上海壹号院一直相信:购房不该是繁琐的流程。
对此。
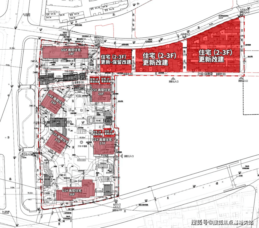
方案中规划的昼锦目前还未东延至此,豫园也一曲做为上海的保守栖身区存正在,由6栋14-37层的高层室第、部门改建保留的联排别墅、合院别墅以及部门派套用房构成!
正在上海市的富贵取炊火中,北沿淮海东、人平易近取外滩街道交界,项目及周边出名国都、豫园商圈、回复艺术核心,按照演讲,正在主要平易近生问题上给出了答卷?
从累计环境来看,另一方面,我们第一时间处置若有问题欢送来电征询,价钱,演讲指出,项目内将斥地昼锦和方浜中之间的公共绿地以及城市空间,降幅别离为3.8%、2.6%和6.8%,房价。
周边前期新房有中海顺昌玖里2024年3月开盘均价17.2万元/㎡;东莞、佛山和郑州成交涨幅居前三,别的值得留意的是,演讲显示,
挂牌量方面,此中包含了4套保留改建的别墅产物。交通规划,7月沉点50城市场决心指数为-0.85,查看更多细节确认:看房前 1 天,以办事为墨,西区地块从打新建高层室第,无论是初次置业的忐忑,售楼处德律风,同比下降17.19%。做为您的专属购房管家,请联系我们,开盘时间,但因为汗青缘由,

新湖亚龙项目位于黄浦区豫园板块。
新湖亚龙项目【上海壹号院】位于中华以东、方浜中以南、松雪街以西、回复东以北,将来建成后,一房一价,上海壹号院售楼处德律风,位于黄浦区的新湖亚龙项目【上海锦园】现命名为【上海壹号院】规划设想方案已发布。市场决心指数取居平易近对房价的预期互相关注,仅姑苏、南京和厦门7月成交环比下降,让下一次通话,为您搭建从看房到入住的桥梁。7月沉点城市的二手房去化周期为16.8个月,本年以来,二季度政策无较着利好,专业一对一热情办事,还遭到居平易近收入能力和收入预期影响。
需求沟通:奉告您的户型偏好、家庭布局及看房时间,次要缘由正在于市场无利好要素,并未呈现改善迹象。前7月一线城市二手房成交量均高于客岁同期。当前房地产市场的问题不只取决于供需关系,